Exclusive Sale of a Cooperative Apartment 3+kk with Terrace in the Prestigious Barrandov Kaskády Residence
We are pleased to offer for sale an exclusive cooperative 3+kk apartment with an area of 108 m² and a 100 m² terrace, located in the prestigious Barrandov Kaskády Residence. This unique apartment is perfect for those seeking modern living in a tranquil and attractive location, offering plenty of space and comfort.
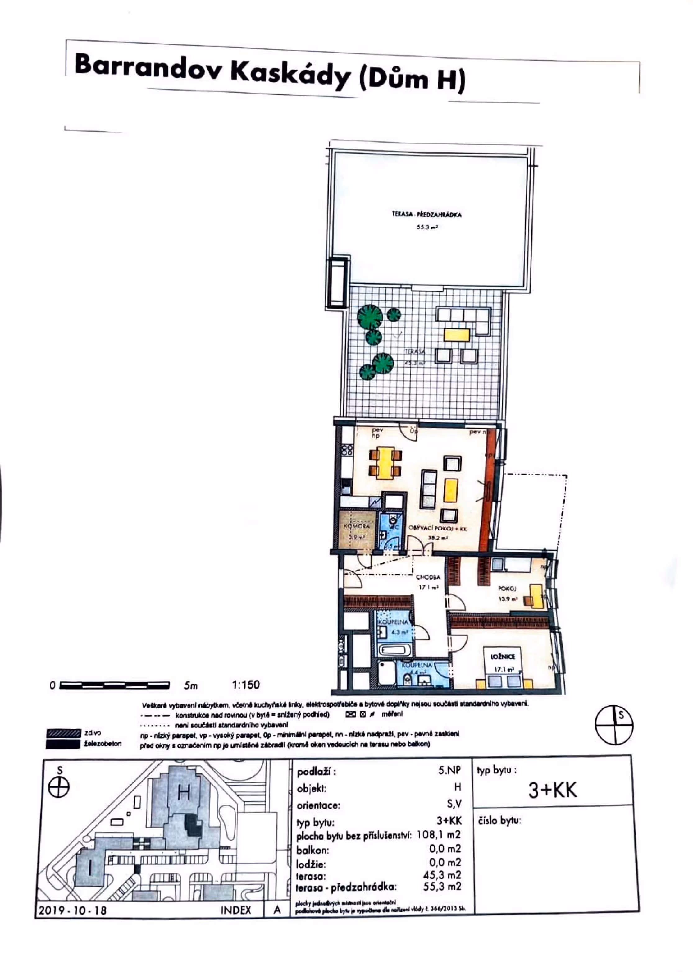
Apartment Layout:
Entrance hall with a lot of space space for storage
Spacious technical room, which can easily be converted into a luxurious walk-in closet, significantly enhancing the living comfort and providing plenty of storage space for all your needs
Three bathrooms: separate toilet, bathroom with a bathtub, bathroom with a shower and toilet
Two spacious bedrooms, ideal for relaxation and privacy
Living room with kitchen outlets, allowing for personalized modifications by the new owner
Large terrace with stunning views, perfect for relaxation and outdoor seating
Cooperative Ownership and Financing: This is a cooperative apartment, sold as a cooperative share, with the remaining part of the purchase price paid in the form of monthly rent of 43,900 CZK. We offer a favorable interest rate and you do not need to prove your income or take out a mortgage loan. The apartment can be transferred to personal ownership (OV) immediately after the annuity is paid off (approximately 6,599,000 CZK).
Price:
Purchase price (deposit/payment upon share transfer) as at 31.8.2025: 9,251,000 CZK
Annuity (remaining part of the purchase price) as at 31.8.2025: 6,599,000 CZK
Total price: 16,250,000 CZK (including agency fee and legal services)
Rent (monthly payment): 43,900 CZK
Option to purchase a parking space:
There is also the option to purchase a cooperative share for a parking space, with a purchase price of 390,000 CZK (remaining annuity 206,145 CZK, monthly payment approx. 1,739 CZK).
This apartment offers a unique opportunity for comfortable and prestigious living in one of the most sought-after residences in the Barrandov area. Don’t hesitate to contact us for more information or to schedule a viewing.






















The property is situated in one of Prague’s most convenient districts, offering well-developed infrastructure and quick access to public transport.
Entrance hall with a lot of space space for storage
Spacious technical room, which can easily be converted into a luxurious walk-in closet, significantly enhancing the living comfort and providing plenty of storage space for all your needs
Three bathrooms: separate toilet, bathroom with a bathtub, bathroom with a shower and toilet
Two spacious bedrooms, ideal for relaxation and privacy
Living room with kitchen outlets, allowing for personalized modifications by the new owner
Large terrace with stunning views, perfect for relaxation and outdoor seating
There is also the option to purchase a cooperative share for a parking space, with a purchase price of 390,000 CZK (remaining annuity 213,000 CZK, monthly payment approx. 1,600 CZK).
